EGP٧٧٧٬٥٠٠/ شهرياً
6 غرف نوم
٣٬٣٤٨ قدم مربع / ٣١١ متر مربع
مساحات مكتبية للايجار في بارك ستريت, الطريق الدائريDirect from Owner – No Commission
For rent: 311 sqm office at Park St. East. One of the very few larger office spaces available in the project. The office is currently undergoing fit-out works and will be ready for handover on 1 April 2026.
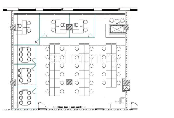
Bright, airy space with abundant natural light and a pleasant plaza view. The layout features a large open area, a kitchenette, and the flexibility to accommodate up to 6 private offices/rooms if required, in addition to the main open space.
Located in a prestigious, high-end commercial destination next to Waterway 5A and U Venues projects. The building hosts top luxury brands such as Rolls-Royce and Cadillac, along with a selection of premium restaurants and cafés.
Excellent accessibility from the Ring Road, providing easy access while avoiding heavy traffic from the Showaifat side.
Underground parking available.
Two-year contract.
Arabic Version
مباشرة من المالك – بدون عمولة
للإيجار: مكتب بمساحة 311 متر مربع في بارك ستريت إيست. يُعد من المساحات المكتبية الكبيرة النادرة داخل المشروع. المكتب حاليًا تحت أعمال التشطيب الداخلي (Fit-out) وسيكون جاهزًا للاستلام في 1 أبريل 2026.
مساحة مشرقة وجيدة التهوية بإضاءة طبيعية وفيرة وإطلالة مميزة على البلازا. يتكون التصميم من مساحة مفتوحة كبيرة، وبانتري، مع إمكانية تقسيم ما يصل إلى 6 مكاتب/غرف مستقلة عند الحاجة، بالإضافة إلى المساحة المفتوحة الرئيسية.
يقع في وجهة تجارية راقية بجوار مشروعي Waterway 5A و U Venues. يضم المبنى علامات فاخرة عالمية مثل رولز-رويس وكاديلاك، إلى جانب مجموعة مختارة من المطاعم والكافيهات الراقية.
سهولة وصول ممتازة من الطريق الدائري، مما يوفر حركة مريحة وتجنب الازدحام المروري من جهة الشويفات.
مواقف سيارات تحت الأرض .
عقد لمدة سنتين.
مكتب للإيجار بارك ستريت إيست | مباشر من المالك
For rent: 311 sqm office at Park St. East. One of the very few larger office spaces available in the project. The office is currently undergoing fit-out works and will be ready for handover on 1 April 2026.
Bright, airy space with abundant natural light and a pleasant plaza view. The layout features a large open area, a kitchenette, and the flexibility to accommodate up to 6 private offices/rooms if required, in addition to the main open space.
Located in a prestigious, high-end commercial destination next to Waterway 5A and U Venues projects. The building hosts top luxury brands such as Rolls-Royce and Cadillac, along with a selection of premium restaurants and cafés.
Excellent accessibility from the Ring Road, providing easy access while avoiding heavy traffic from the Showaifat side.
Underground parking available.
Two-year contract.
Arabic Version
مباشرة من المالك – بدون عمولة
للإيجار: مكتب بمساحة 311 متر مربع في بارك ستريت إيست. يُعد من المساحات المكتبية الكبيرة النادرة داخل المشروع. المكتب حاليًا تحت أعمال التشطيب الداخلي (Fit-out) وسيكون جاهزًا للاستلام في 1 أبريل 2026.
مساحة مشرقة وجيدة التهوية بإضاءة طبيعية وفيرة وإطلالة مميزة على البلازا. يتكون التصميم من مساحة مفتوحة كبيرة، وبانتري، مع إمكانية تقسيم ما يصل إلى 6 مكاتب/غرف مستقلة عند الحاجة، بالإضافة إلى المساحة المفتوحة الرئيسية.
يقع في وجهة تجارية راقية بجوار مشروعي Waterway 5A و U Venues. يضم المبنى علامات فاخرة عالمية مثل رولز-رويس وكاديلاك، إلى جانب مجموعة مختارة من المطاعم والكافيهات الراقية.
سهولة وصول ممتازة من الطريق الدائري، مما يوفر حركة مريحة وتجنب الازدحام المروري من جهة الشويفات.
مواقف سيارات تحت الأرض .
عقد لمدة سنتين.
تفاصيل العقار
نوع العقار
مساحات مكتبية
مساحة العقار
٣٬٣٤٨ قدم مربع / ٣١١ متر مربع
عدد غرف النوم
6
الحمامات
لا يوجد
متاح من
١ أبريل ٢٠٢٦
مزايا
مفروشة
كابلات ممدودة
موقف مغطى
قاعة لتناول الطعام
ردهة في المبنى
غرفة إجتماعات
الموقع

المقدمة من
Sales Admin
Admintry
شاهد عقارات الوكالة (3)المعلومات التنظيمية
المعلومات التنظيمية
مرجع
A2MRWGB3TMV7PS63EXHPQ3C3ZR
نُشِر
منذ 3 ساعات
يُنصح به
