EGP٢٣٬٠٠٠٬٠٠٠
4 غرف نوم
3 حمّامات
٣٬٢٨٣ قدم مربع / ٣٠٥ متر مربع
منزل مزدوج للبيع في ماونتن فيو اى سيتي, كمبوندات التجمع الخامسماونتن فيو iCity القاهرة الجديدة
المرحلة: club park
---
توين هاوس
الموقع الرئيسي - الحديقة المركزية المباشرة
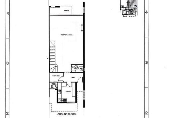
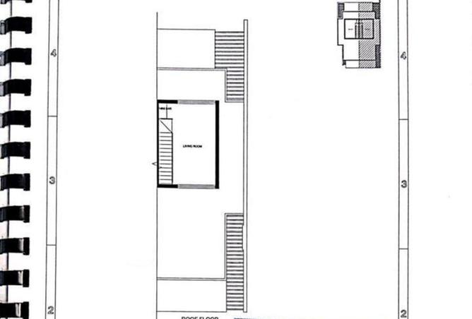
* BUA: 297 م
* الأرض: 305 م
* الحديقة: 125 متر
* الأرض + الأول + الرووف
* غرف النوم: 3 + 3 حمام
* الحمامات: 3 بما في ذلك الغرفة الرئيسية مع خلع الملابس
* تراس : 3
* تراس على السطح
غُرْفة مَعيشةٍ
غُرْفة المَلابِسِ
جاهز للاستلام فورا
للمعاينة
+201022879707
====================
للبيع تاون هاوس 305م استلام فوري في ماونتن فيو
المرحلة: club park
---
توين هاوس
الموقع الرئيسي - الحديقة المركزية المباشرة
* BUA: 297 م
* الأرض: 305 م
* الحديقة: 125 متر
* الأرض + الأول + الرووف
* غرف النوم: 3 + 3 حمام
* الحمامات: 3 بما في ذلك الغرفة الرئيسية مع خلع الملابس
* تراس : 3
* تراس على السطح
غُرْفة مَعيشةٍ
غُرْفة المَلابِسِ
جاهز للاستلام فورا
للمعاينة
+201022879707
====================
تفاصيل العقار
نوع العقار
منزل مزدوج
مساحة العقار
٣٬٢٨٣ قدم مربع / ٣٠٥ متر مربع
عدد غرف النوم
4
الحمامات
3
متاح من
١٩ أبريل ٢٠٢٦
مزايا
شرفة
موقف مغطى
حديقة خاصة
غرفة دراسة
حارس أمن
نادي صحي مشترك
صالة رياضة مشتركة
غرفة للملابس
مطل على معلم رئيسي
تفاصيل المشروع
الموقع

المقدمة من

Noha El-Shaheen
Waystar Investment
شاهد عقارات الوكالة (309)المعلومات التنظيمية
المعلومات التنظيمية
مرجع
140april
نُشِر
منذ 3 ساعات
يُنصح به
طريقة الدفع
نقداً



