EGP٣٬٥٠٠٬٠٠٠
5 غرف نوم
5 حمّامات
٣٬٣٣٧ قدم مربع / ٣١٠ متر مربع
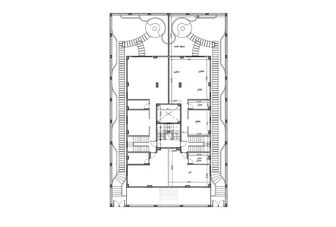
دوبلكس للبيع في الحي 300, التوسعات الشماليةتفاصيل الوحدة
دوبلكس فاخر للبيع – 310 متر + جاردن 150 متر
مدخل خاص بعرض 3 متر بالإضافة إلى مدخل من العمارة
عداد كهرباء 3 فاز
مدخل العمارة بتشطيب رخام كرارة فاخر وجيبسون بورد
أسانسير حديث عالي الجودة
رامب 3 متر لركن السيارة
العمارة دبل فيس بواجهة بحرية
الشارع بعرض 24 متر
التصميم من مكتب استشاري كبير مع إشراف هندسي كامل
إمكانية إعادة تقسيم البيزمنت وفق احتياجات المالك
أوراق قانونية سليمة ومدفوعة جدية التصالح
اشتراك المياه مدفوع حتى نهاية 2025
الموقع
موقع استراتيجي بجوار أكبر ميدان يتوسط الكمبوندات وحي البوليفارد (كمبوند صبا، نيوم أكتوبر، ماونتن فيو شيل أوت)
4 دقائق فقط من الطريق الدائري الأوسطي
خلف العمارة مباشرة مسجد الفاروق وعلى بعد 200 متر مسجد الكويت
10 دقائق من مول العرب، الممشى السياحي، ومحور جمال عبد الناصر
10 دقائق من مدينة الشيخ زايد ووصلة دهشور
المميزات
تصميم فاخر وإشراف هندسي يضمن الجودة
مدخل خاص ومساحة جاردن كبيرة تمنح الخصوصية
أوراق قانونية خالصة جاهزة للتعامل الفوري
موقع متميز يضمن سهولة التنقل وقرب جميع الخدمات
عن الشركة
شركة ملكي للاستثمار العقاري من الشركات الرائدة في تسويق وبيع العقارات بمدينة أكتوبر و أكتوبر الجديدة وأحياءها المميزة. نعمل على تقديم وحدات سكنية واستثمارية ذات قيمة عالية، مع الالتزام بالشفافية والمصداقية، لنضمن لعملائنا تجربة شراء آمنة وفرص استثمارية حقيقية ت
فرصة ذهبية دوبلكس في التوسعات الشمالية
دوبلكس فاخر للبيع – 310 متر + جاردن 150 متر
مدخل خاص بعرض 3 متر بالإضافة إلى مدخل من العمارة
عداد كهرباء 3 فاز
مدخل العمارة بتشطيب رخام كرارة فاخر وجيبسون بورد
أسانسير حديث عالي الجودة
رامب 3 متر لركن السيارة
العمارة دبل فيس بواجهة بحرية
الشارع بعرض 24 متر
التصميم من مكتب استشاري كبير مع إشراف هندسي كامل
إمكانية إعادة تقسيم البيزمنت وفق احتياجات المالك
أوراق قانونية سليمة ومدفوعة جدية التصالح
اشتراك المياه مدفوع حتى نهاية 2025
الموقع
موقع استراتيجي بجوار أكبر ميدان يتوسط الكمبوندات وحي البوليفارد (كمبوند صبا، نيوم أكتوبر، ماونتن فيو شيل أوت)
4 دقائق فقط من الطريق الدائري الأوسطي
خلف العمارة مباشرة مسجد الفاروق وعلى بعد 200 متر مسجد الكويت
10 دقائق من مول العرب، الممشى السياحي، ومحور جمال عبد الناصر
10 دقائق من مدينة الشيخ زايد ووصلة دهشور
المميزات
تصميم فاخر وإشراف هندسي يضمن الجودة
مدخل خاص ومساحة جاردن كبيرة تمنح الخصوصية
أوراق قانونية خالصة جاهزة للتعامل الفوري
موقع متميز يضمن سهولة التنقل وقرب جميع الخدمات
عن الشركة
شركة ملكي للاستثمار العقاري من الشركات الرائدة في تسويق وبيع العقارات بمدينة أكتوبر و أكتوبر الجديدة وأحياءها المميزة. نعمل على تقديم وحدات سكنية واستثمارية ذات قيمة عالية، مع الالتزام بالشفافية والمصداقية، لنضمن لعملائنا تجربة شراء آمنة وفرص استثمارية حقيقية ت
تفاصيل العقار
نوع العقار
دوبلكس
مساحة العقار
٣٬٣٣٧ قدم مربع / ٣١٠ متر مربع
عدد غرف النوم
5
الحمامات
5
متاح من
٢١ سبتمبر ٢٠٢٥
مزايا
شرفة
مطل على معلم رئيسي
ردهة في المبنى
غرفة للملابس
الموقع

مؤشرات أداء الأسعار
هذا العقار تكلفته 43% اقل من المعدل سعر 5 غرف نوم في الجيزة
معدل سعر البيع ٦٬١٣٢٬١٦٢ جنيه
هذا العقار 4% اصغر من المعدل حجم 5 غرف نوم في الجيزة
معدل المساحة ٣٢٣ متر مربع
تعتمد البيانات المعروضة على متوسط الأسعار والمساحات لجميع العقارات التي كانت موجودة على بروبرتي فايندر في الجيزة
المقدمة من
شركة ملكي للاستثمار العقاري
ملكي للاستثمار العقاري
شاهد عقارات الوكالة (12)المعلومات التنظيمية
المعلومات التنظيمية
مرجع
4
نُشِر
منذ 4 شهور
يُنصح به
طريقة الدفع
نقداً
