EGP١٣٬٢٠٠٬٠٠٠
غرفة نوم
حمّام
١٬٠٠١ قدم مربع / ٩٣ متر مربع
شقة للبيع في سوان ليك ريزيدنس, كمبوندات التجمع الخامستقدم شركة حسن علام بفخر حيها الخامس المسور حصريًا ، ذا فينيكس التجمع الخامس ، داخل كمبوند سوان ليك القاهرة الجديدة. فينيكس هنا لبدء نهضة الحياة الفاخرة ، وتحديد جديد بُعد يسهل الوصول إليه لتحقيق الأناقة المنفذة ببراعة ، وكسر القواعد بجرأة على بطاقات الأسعار الباهظة.
###تفاصيل عن كمبوند ذا فينيكس سوان ليك
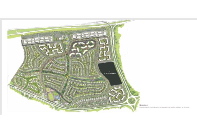
كمبوند ذا فينيكس سوان ليك القاهرة الجديدة هو أحد المشاريع العقارية لمؤسسة حسن علام العقارية العريقة على مساحة 438 فدانًا، وحرصت الشركة المنفذة على أن يحتوي المشروع على مساحات خضراء واسعة تساعد على توفير جو صحي للمعيشة لك ولأسرتك، أما بالنسبة للوحدات السكنية المتوفر فهي متنوعة بين شقق عادية وشقق بحدائق وشقق دوبلكس، كما تتوفر هذه الوحدات بمساحات مختلفة ومتنوعة تتناسب مع كل الأذواق والميزانيات، وإن كنت تتساءل عن التشطيبات والديكورات فالوحدات ذات تشطيب سوبر لوكس على أعلى جودة، حيث أن الشركة تسعى لإرضاء عملائها بتصميمات غاية في الرقي.
##نبذة عن المطور العقاري لكمبوند ذا فينيكس سوان ليك
يُعَد كمبوند ذا فينيكس سوان ليك أحدثَ مشروعات شركة حسن علام العقارية، التي تُعَد واحدة من أبرز شركات التطوير العقاري في مصر.
منذ تأسيسها وحتى الآن، قامت شركة حسن علام بالعديد من المشاريع المتنوعة ما بين عقارات سكنية ومنتجعات سياحية، في مختلف أنحاء مصر. ليس هذا فقط، بل بدأت الشركة في التوسُّع في أعمالها لتصل إلى خارج مصر من خلال عدد من المشاريع في الدول العربي
###سابقة أعمال شركة حسن علام العقارية
سيزونز ريزيدنس في القاهرة الجديدة.
كمبوند بارك في القاهرة الجديدة.
منتجع Little Venice Golf في العين السخنة.
منتجع Baia Bianca Vacation في شرم الشيخ.
##موقع ذا فينيكس سوان ليك القاهرة الجديدة
كمبوند ذا فينيكس سوان ليك واحد من الكمبوندات ذات الموقع الرائع، يقع الكمبوند في قلب التجمع الأول وهو أحد أحياء القاهرة الجديدة على محور مصطفى كامل، وله أكثر من مدخل.
يمكنك الوصول إلى الكمبوند باستخدام الطريق الدائري أو عن طريق الطرق الداخلية للتجمع الأول، ومن الناحية الشمالية تجده بالقرب من بنزينة مصر للبترول، وهو على مقربة من فندق جي دبليو ماريوت.
للبيع شقة في SwanLake Resedince التجمع الخامس
###تفاصيل عن كمبوند ذا فينيكس سوان ليك
كمبوند ذا فينيكس سوان ليك القاهرة الجديدة هو أحد المشاريع العقارية لمؤسسة حسن علام العقارية العريقة على مساحة 438 فدانًا، وحرصت الشركة المنفذة على أن يحتوي المشروع على مساحات خضراء واسعة تساعد على توفير جو صحي للمعيشة لك ولأسرتك، أما بالنسبة للوحدات السكنية المتوفر فهي متنوعة بين شقق عادية وشقق بحدائق وشقق دوبلكس، كما تتوفر هذه الوحدات بمساحات مختلفة ومتنوعة تتناسب مع كل الأذواق والميزانيات، وإن كنت تتساءل عن التشطيبات والديكورات فالوحدات ذات تشطيب سوبر لوكس على أعلى جودة، حيث أن الشركة تسعى لإرضاء عملائها بتصميمات غاية في الرقي.
##نبذة عن المطور العقاري لكمبوند ذا فينيكس سوان ليك
يُعَد كمبوند ذا فينيكس سوان ليك أحدثَ مشروعات شركة حسن علام العقارية، التي تُعَد واحدة من أبرز شركات التطوير العقاري في مصر.
منذ تأسيسها وحتى الآن، قامت شركة حسن علام بالعديد من المشاريع المتنوعة ما بين عقارات سكنية ومنتجعات سياحية، في مختلف أنحاء مصر. ليس هذا فقط، بل بدأت الشركة في التوسُّع في أعمالها لتصل إلى خارج مصر من خلال عدد من المشاريع في الدول العربي
###سابقة أعمال شركة حسن علام العقارية
سيزونز ريزيدنس في القاهرة الجديدة.
كمبوند بارك في القاهرة الجديدة.
منتجع Little Venice Golf في العين السخنة.
منتجع Baia Bianca Vacation في شرم الشيخ.
##موقع ذا فينيكس سوان ليك القاهرة الجديدة
كمبوند ذا فينيكس سوان ليك واحد من الكمبوندات ذات الموقع الرائع، يقع الكمبوند في قلب التجمع الأول وهو أحد أحياء القاهرة الجديدة على محور مصطفى كامل، وله أكثر من مدخل.
يمكنك الوصول إلى الكمبوند باستخدام الطريق الدائري أو عن طريق الطرق الداخلية للتجمع الأول، ومن الناحية الشمالية تجده بالقرب من بنزينة مصر للبترول، وهو على مقربة من فندق جي دبليو ماريوت.
تفاصيل العقار
نوع العقار
شقة
مساحة العقار
١٬٠٠١ قدم مربع / ٩٣ متر مربع
عدد غرف النوم
1
الحمامات
1
مزايا
شرفة
مسبح مشترك
حارس أمن
غرفة للملابس
صالة رياضة مشتركة
الموقع

مؤشرات أداء الأسعار
هذا العقار تكلفته 106% المزيد من المعدل سعر 1 غرف نوم في القاهرة
معدل سعر البيع ٦٬٣٩٤٬٦٠٤ جنيه
هذا العقار 13% اكبر من المعدل حجم 1 غرف نوم في القاهرة
معدل المساحة ٨٢ متر مربع
تعتمد البيانات المعروضة على متوسط الأسعار والمساحات لجميع العقارات التي كانت موجودة على بروبرتي فايندر في القاهرة
المقدمة من

Ahmed Al Deeb
Abrag Real Estate
شاهد عقارات الوكالة (1052)المعلومات التنظيمية
المعلومات التنظيمية
مرجع
Lomar94
نُشِر
منذ أكثر من 6 أشهر
يُنصح به
طريقة الدفع
نقداً او تقسيط
مُقدم
٦٦٠٬٠٠٠ جنيه
