EGP ١٢٬٥٠٠٬٠٠٠
3 غرف نوم
3 حمّامات
١٬٩٣٨ قدم مربع / ١٨٠ متر مربع
تاون هاوس للبيع في قماري, R8تطلق شركة مدن مشروعها الجديد في منطقة ال R8 العاصمة الادارية، مشروع لاجونز العاصمة.
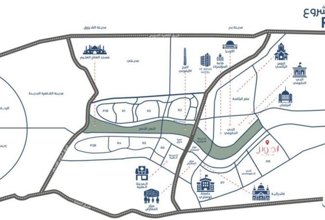
المشروع بأعلى ربوة في الحي السكني R8
بموقع استراتيجي على المحور المركزي والمحور الشرقى المتصلين مباشرة بمحور بن زايد.
المشروع بإطلالة مباشرة على البرج الأيقوني والنهر الأخضر والحديقة المركزية
وبالقرب من أهم معالم العاصمة (مركز المؤتمرات - الحي الدبلوماسي)
المشروع على مساحة ربع مليون متر مربع (60 فدان).
المشروع بيضم أول وأكبر لاجونز في العاصمة الإدارية الجديدة على مساحة 10 فدان
المشروع متكامل الخدمات:
▫كلوب هاوس
▫ نادي رياضي
▫ مدرسة كورة عالمية
المشروع بيضم توين هاوس و تاون هاوس ودوبلكس وشقق مكونة من 3 غرف نوم.
تفاصيل الوحدة:
تاون هاوس:180م
3 غرف نوم
3 حمام
نظام التقسيط:-
مقدم 5 % و قسط حتي 10 سنين
أقل سعر فيلا بأقساط على 10سنين فى العاصمة الادارية
المشروع بأعلى ربوة في الحي السكني R8
بموقع استراتيجي على المحور المركزي والمحور الشرقى المتصلين مباشرة بمحور بن زايد.
المشروع بإطلالة مباشرة على البرج الأيقوني والنهر الأخضر والحديقة المركزية
وبالقرب من أهم معالم العاصمة (مركز المؤتمرات - الحي الدبلوماسي)
المشروع على مساحة ربع مليون متر مربع (60 فدان).
المشروع بيضم أول وأكبر لاجونز في العاصمة الإدارية الجديدة على مساحة 10 فدان
المشروع متكامل الخدمات:
▫كلوب هاوس
▫ نادي رياضي
▫ مدرسة كورة عالمية
المشروع بيضم توين هاوس و تاون هاوس ودوبلكس وشقق مكونة من 3 غرف نوم.
تفاصيل الوحدة:
تاون هاوس:180م
3 غرف نوم
3 حمام
نظام التقسيط:-
مقدم 5 % و قسط حتي 10 سنين
تفاصيل العقار
نوع العقار
تاون هاوس
مساحة العقار
١٬٩٣٨ قدم مربع / ١٨٠ متر مربع
عدد غرف النوم
3
الحمامات
3
متاح من
١١ أكتوبر ٢٠٢٥
مزايا
شرفة
حديقة خاصة
مسبح مشترك
حارس أمن
موقف مغطى
غرفة للملابس
مطل على بحيرات
مطل على معلم رئيسي
صالة رياضة مشتركة
ردهة في المبنى
الموقع

مؤشرات أداء الأسعار
هذا العقار تكلفته 26% اقل من المعدل سعر 3 غرف نوم في القاهرة
معدل سعر البيع ١٦٬٨٩٥٬٨٢٦ جنيه
هذا العقار 22% اصغر من المعدل حجم 3 غرف نوم في القاهرة
معدل المساحة ٢٣٠ متر مربع
تعتمد البيانات المعروضة على متوسط الأسعار والمساحات لجميع العقارات التي كانت موجودة على بروبرتي فايندر في القاهرة
المقدمة من
Mahmoud A Rafee
The Map Investments
شاهد عقارات الوكالة (277)المعلومات التنظيمية
المعلومات التنظيمية
مرجع
modon/lagoonsR8/180m
نُشِر
منذ شهر واحد
يُنصح به
طريقة الدفع
تقسيط
مُقدم
٦٢٥٬٠٠٠ جنيه
