ليان

المعلومات الرئيسية
- موعد التسليم
ديسمبر ٢٠٢٣
- الموقع
- خطة السداد
- عدد الأبنية
- أنواع العقارات
تاون هاوس, فيلا
- نوع الملكية
التملك الحر
خطة الدفع
20%
مُقدم
عند إطلاق المبيعات
الخط الزمني للمشروع
إعلان المشروع
تاريخ التسليم المتوقع
وحدات
من المطور العقاري
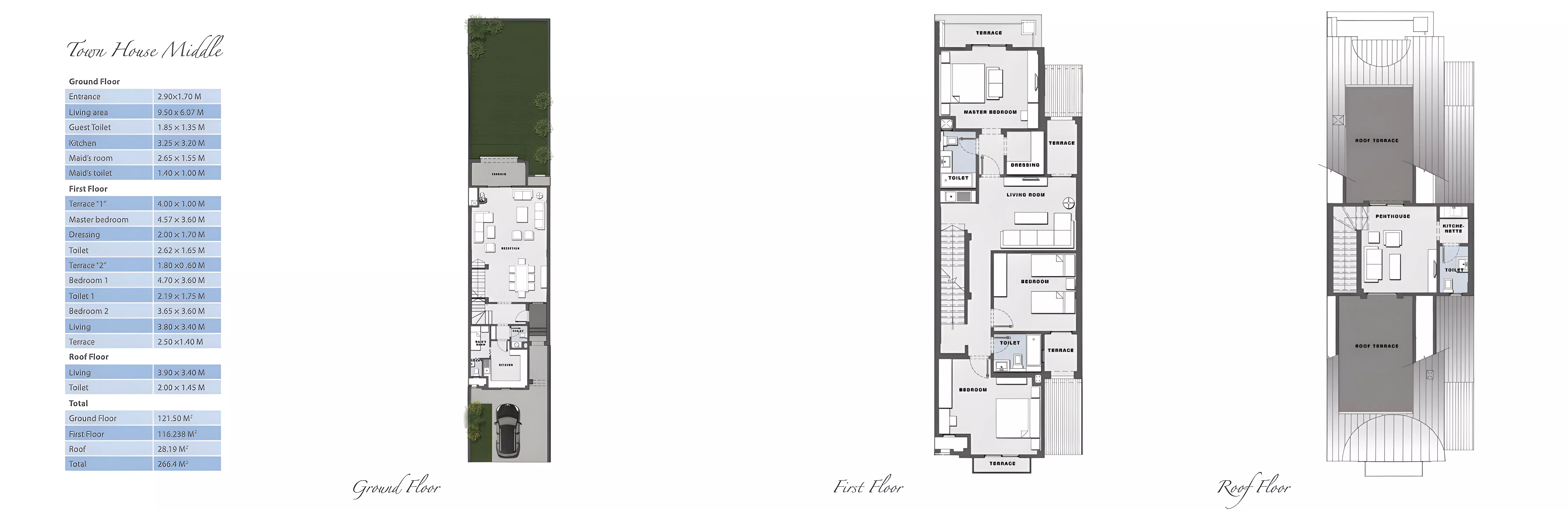
تاون هاوس
| نوع التخطيط | المساحة (sqm) | عدد الحمامات | مخطط طابق |
|---|---|---|---|
| Type A | 326 | ||
| Type B | 283 | ||
| Type C | 309 | ||
| Type D | 270 | ||
| Type E | 297 | ||
| Type F | 266 |
فيلا
| نوع التخطيط | المساحة (sqm) | عدد الحمامات | مخطط طابق |
|---|---|---|---|
| Type A | 375 |
متوفر في هذا المشروع.
عن المشروع
إذا كنت من محبي الرفاهية وتبحث عن منزل مريح به جميع وسائل الراحة التي يمكنك أنت وأطفالك تقديمها لك ولأطفالك لحياة سعيدة ، إذا كنت تريد مكانًا بعيدًا عن تلوث وضوضاء المدينة ، في وقت واحد القرب من عدة مناطق مهمة ومهمة. ليان صبور هي الإجابة المثالية على أسئلتك ، فهي المكان المثالي لتحقيق كل أحلامك. إنه المعنى الحرفي لكلمة التميز والصقل. يقدم لك هذا الكمبوند خدمات لا حصر لها وأسعار مريحة ومواعيد تسليم محددة لتوصيلك بالمنزل بأسرع وقت ممكن
موقع كمبوند ليان صبور
يقع ليان ريزيدنس صبور في شارع التسعين بقلب القاهرة الجديدة بالقرب من العديد من المعالم الهامة بالمنطقة مثل: الجامعة الأمريكية: يبعد هذا الكمبوند 5 دقائق فقط عن الجامعة الأمريكية الجديدة بالقاهرة. نادي بلاتينيوم: يقع الكمبوند بالقرب من نادي بلاتينيوم أحد معالم القاهرة الجديدة. كونتري بارك: الكمبوند قريب جدًا من واحدة من أكبر الحدائق في القاهرة الجديدة ، كانتري بارك. بشكل عام ، ساهم الموقع الرئيسي للكمبوند في زيادة الطلب عليه من أولئك الذين يتطلعون إلى تأمين فرص استثمارية في القاهرة الجديدة.
ليان المخطط الرئيسي

يقع المخطط الرئيسي لمشروع ليان، من تطوير شركة لاند مارك صبور، ضمن المخطط الرئيسي الأوسع لمدينة القاهرة الجديدة. يتميز المشروع بكونه مجمعًا سكنيًا مخصصًا للفيلات، ويُصمم ليوفر بيئة هادئة تجمع بين القرب من المراكز الحيوية والابتعاد عن صخب المدينة. يقع المشروع على شارع التسعين الحيوي، ويضم مجموعة من الوحدات السكنية الراقية المصممة لتلبية احتياجات العائلات التي تبحث عن الراحة والعملية في آن واحد. يستفيد المخطط الرئيسي لليان من موقعه المميز بالقرب من الجامعة الأمريكية ونادي بلاتينيوم وحديقة كانتري بارك، ما يمنحه طابعًا سكنيًا متوازنًا يجمع بين الخصوصية وسهولة الوصول.
المزايا الرئيسية
الموقع والمعالم القريبة
- الجامعة الأمريكية بالقاهرة – على بُعد 5 دقائق
- نادي بلاتينيوم – قريب
- حديقة كانتري بارك – قريبة
- يقع على شارع التسعين في القاهرة الجديدة
المرافق والخدمات
- عدة حمامات سباحة بأشكال وأحجام متنوعة
- منطقة أعمال تضم محال تجارية ومطاعم وخدمات فاخرة
- مركز طبي دولي يقدم خدمات صحية على مدار الساعة
- صالة ألعاب رياضية مجهزة بالكامل مع مدربين محترفين
- مركز لياقة بدنية مزوّد بسبا، جاكوزي، وساونا
- ثلاث نوادٍ اجتماعية ورياضية كبيرة
- منطقة ألعاب مخصصة للأطفال
- مدرسة دولية
- منطقة تجارية تضم مولًا، متاجر، مقاهي ومطاعم
- جراج كبير مؤمَّن للسيارات
- خدمات أمن ومراقبة على مدار الساعة باستخدام أحدث التقنيات
الموقع

مزايا
- • نادي صحي
- • صالة رياضية
- • كاميرات المراقبة
- • مطاعم
- • مسبح داخلي