![بلوم فيلدز صورة لمشروع بلوم فيلدز من تطوير Tatweer Misr في القاهرة,مدينة المستقبل,كمبوندات مدينة المستقبل,بلوم فيلدز - [1]](https://new-projects-media.propertyfinder.com/project/09405d00-0ca9-4653-b546-cb682bb4a5e2/gallery/image/UVqSNCL3ZrBnMgsYlVHDWmnMb0hvwyib58fjHN5ftpY=/medium.webp)

من: ٦٫٤ مليون جنيه
القاهرة,مدينة المستقبل,كمبوندات مدينة المستقبل,بلوم فيلدز
السعر عند الإطلاق ٢٫٥ مليون جنيه*
*الأسعار و الوحدات متوفرة وشروط الشراء قد تتغير بشكل متكرر. تواصل مع مندوب لمعرفة الوحدات متوفرة و الأسعار الحالية

شقة, دوبلكس
التملك الحر
10%
مُقدم
عند إطلاق المبيعات
25%
مُقدم
عند إطلاق المبيعات
20%
مُقدم
عند إطلاق المبيعات
15%
مُقدم
عند إطلاق المبيعات
5%
مُقدم
عند إطلاق المبيعات
إعلان المشروع
بدأ البناء
تاريخ التسليم المتوقع
يُعد رافي مشروعًا سكنيًا راقيًا من تطوير كابتن للتطوير العقاري في العاصمة الإدارية الجديدة، مصممًا لتقديم مزيج متقن من العمارة الحديثة، الراحة، وسهولة نمط الحياة. يركز المشروع على التخطيطات الواسعة، التشطيبات عالية الجودة، والمساحات المشتركة المصممة بعناية، مما يوفر بيئة سكنية هادئة ونابضة في الوقت نفسه. يتمتع سكان رافي بأسلوب حياة حصري داخل كمبوند مخطط بدقة، يحتوي على مساحات خضراء واسعة، حدائق مركزية، بحيرات، ومسابح مجتمعية، لتوفير تجربة حياة حضرية متكاملة.
يجمع المشروع بين الأناقة والوظائف العملية، مقدمًا مجموعة متنوعة من الوحدات لتلبية احتياجات مختلف السكان. من خلال دمج المرافق متعددة الاستخدام، المساحات الترفيهية، وأنظمة توفير الطاقة، يمثل رافي نهجًا عصريًا للحياة السكنية الفاخرة في أحد أكثر المراكز العمرانية الواعدة بمصر.
تركز الرؤية المعمارية في رافي على الخطوط النظيفة، الجماليات الحديثة، والتصميم العملي، ما يخلق بيئة معيشية جذابة وعصرية. أبرز ميزات التصميم تشمل:
تصميم حديث بواجهات أنيقة وبسيطة.
تخطيطات واسعة تستفيد من الضوء الطبيعي والتهوية المتقاطعة.
شرفات وتراسات تطل على الحدائق المركزية، البحيرات، والمناطق المنسقة.
دمج عناصر صديقة للبيئة مثل أنظمة الطاقة الشمسية ومواد موفرة للطاقة.
مسارات مشاة ومسارات دراجات مخططة بعناية لتعزيز الحركة والسلامة.
مواد بناء عالية الجودة لضمان المتانة وتشطيبات راقية.
بنية تحتية جاهزة للمنازل الذكية بما في ذلك الإنترنت الفايبر، IPTV، ونظام الاتصال بالفيديو.
يضمن التصميم شعور كل وحدة بالانفتاح، والتهوية، والتواصل مع البيئة المحيطة، مما يعزز الشعور بالمساحة، الهدوء، والفخامة.
تم تصميم رافي لتقديم أسلوب حياة متوازن، حيث يمكن للسكان الاستمتاع بالترفيه، الصحة، والتفاعل الاجتماعي في بيئة آمنة مناسبة للعائلات. تشمل مرافق الكمبوند:
مناطق خضراء داخل الكتلة للسكنية للاسترخاء والاجتماعات الاجتماعية.
مسارات مشاة ودراجات لتعزيز النشاط البدني.
مناطق تجارية مختلطة تشمل مقاهي، مطاعم، ومتاجر احتياجات يومية.
كلوب هاوس مجهز بصالة رياضية، سبا وساونا للرفاهية والصحة.
مركز طبي ومسجد لتلبية الاحتياجات الصحية والروحية.
مواقف آمنة تحت الأرض مزودة بمراقبة وأنظمة وصول ذكية.
مسابح مجتمعية وحدائق مركزية توفر أجواءً خلابة ومريحة.
أنظمة طاقة شمسية وموفرة للطاقة لدعم الاستدامة.
تكييف مركزي لضمان الراحة طوال العام.
توفر هذه المرافق بيئة متكاملة تمكن السكان من الاستمتاع بالرفاهية، النشاط، والتواصل الاجتماعي دون مغادرة الكمبوند.
يقع رافي في قلب العاصمة الإدارية الجديدة، ما يمنح السكان كلًا من المكانة والراحة. يتمركز الكمبوند في منطقة حضرية مزدهرة تضم أحياء حكومية ودبلوماسية وسكنية، مع قربه من المعالم الثقافية والخدمات الأساسية ووجهات الترفيه، مما يضمن نمط حياة متوازن دون التضحية بالخصوصية أو سهولة الوصول.
يقدم رافي مجموعة شاملة من المرافق المصممة لتعزيز الراحة، الملاءمة، والترفيه:
مناطق خضراء، بحيرات، وحدائق مركزية توفر مساحات خارجية هادئة.
مسارات مشاة ودراجات لتعزيز النشاط البدني والصحي.
منطقة تجارية مختلطة تشمل مقاهي، مطاعم، ومتاجر احتياجات يومية.
مصاعد عالية السرعة ومواقف آمنة تحت الأرض للراحة والأمان.
بنية تحتية للمنازل الذكية تشمل الإنترنت الفايبر، IPTV، ونظام اتصال بالفيديو.
كلوب هاوس بصالة رياضية، سبا وساونا للرفاهية والصحة.
مركز طبي ومسجد لتلبية الاحتياجات الصحية والروحية.
مسابح مجتمعية للاسترخاء والترفيه.
أنظمة أمن ومراقبة مع بوابات ذكية على مدار الساعة.
أنظمة طاقة شمسية وموفرة للطاقة لدعم الاستدامة.
تكييف مركزي لضمان الراحة طوال العام.
تخلق هذه المرافق مجتمعًا مكتفيًا ذاتيًا يسمح للسكان بالاستمتاع بأسلوب حياة فاخر دون الحاجة لمغادرة الكمبوند.
يقدم رافي مجموعة متنوعة من الوحدات المصممة لتلبية احتياجات العائلات والمحترفين والمستثمرين:
شقة 2 غرفة نوم
شقة 3 غرف نوم
دوبلكس 3 غرف نوم
تم تصميم كل وحدة لتعظيم المساحة والوظائف والجاذبية البصرية، مما يضمن الراحة والأناقة في كل زاوية.
يمثل رافي فرصة استثمارية واعدة في أحد أسرع المراكز الحضرية نموًا بمصر، ويقدم:
موقعًا متميزًا بالعاصمة الإدارية الجديدة مع إمكانات نمو مستقبلية عالية.
قربًا من المعالم الثقافية والطبية والترفيهية.
تصميمًا عصريًا ومرافق فاخرة تزيد من قيمة الإيجار وإعادة البيع على المدى الطويل.
أسعار تنافسية وخطط سداد مرنة تجذب مجموعة واسعة من المشترين.
بنية تحتية مستدامة وموفرة للطاقة، مما يعزز الجاذبية للمشترين المهتمين بالبيئة.
يجمع المشروع بين الموقع، التصميم، والمرافق ليكون خيارًا جذابًا للمستثمرين الباحثين عن ارتفاع رأس المال على المدى الطويل والطلب الإيجاري الفوري.
تشتهر كابتن للتطوير العقاري بالتزامها بإنشاء مجتمعات سكنية فاخرة تجمع بين التصميم العصري، التخطيطات العملية، والمرافق التي تعزز نمط الحياة. تتميز الشركة بخبرة واسعة في السوق المصري، مع التركيز على اختيار المواقع الاستراتيجية، تنفيذ تصميمات مبتكرة، وتقديم مشاريع مستدامة وعالية الجودة. يعكس رافي التزام المطور بتقديم مجتمعات تلبي أعلى معايير المعيشة، القيمة الاستثمارية، ورضا السكان.
![صورة لمشروع رافي من تطوير كابتن للتطوير العقاري في القاهرة,العاصمة الإدارية الجديدة,كمبوندات العاصمة الإدارية الجديدة,رافي - [1] صورة لمشروع رافي من تطوير كابتن للتطوير العقاري في القاهرة,العاصمة الإدارية الجديدة,كمبوندات العاصمة الإدارية الجديدة,رافي - [1]](https://new-projects-media.propertyfinder.com/project/7e47c557-65f9-430c-bd2b-f04194dd3d0a/master_plan/image/fh0LWxWtlOJLhsieZ3FXbsR0chA8qKHcQyfFYQhmf0U=/original.webp)
يمثل مشروع Ravie من شركة الكابتن للتطوير العقاري جزءًا من المخطط الرئيسي المميز لمجمعات العاصمة الإدارية الجديدة. يقع المشروع في الحي الثامن R8 على القطعة C1B، ويضم وحدات سكنية عالية الجودة تم تصميمها وفقًا لأعلى المعايير العالمية. وبفضل موقعه داخل المخطط الرئيسي، يتمتع Ravie بقربه من محاور حيوية في العاصمة الجديدة، كما تحيط به ثلاثة محاور رئيسية توفر وصولًا مباشرًا إلى أهم المناطق والمعالم. يتفرّد المشروع بطابع معماري مستوحى من الأسلوب الفرنسي، إلى جانب تصميمات داخلية عصرية ومرافق متكاملة تناسب أنماط الحياة الحديثة. يركّز المخطط الرئيسي لـ Ravie على المساحات الخضراء المفتوحة، وتوزيع ذكي للخدمات، واتصال مباشر بالوجهات الثقافية والترفيهية والحكومية، مما يعزز من جودة الحياة داخل المشروع.

شقة
| نوع التخطيط | المساحة (sqm) | عدد الحمامات | مخطط طابق |
|---|---|---|---|
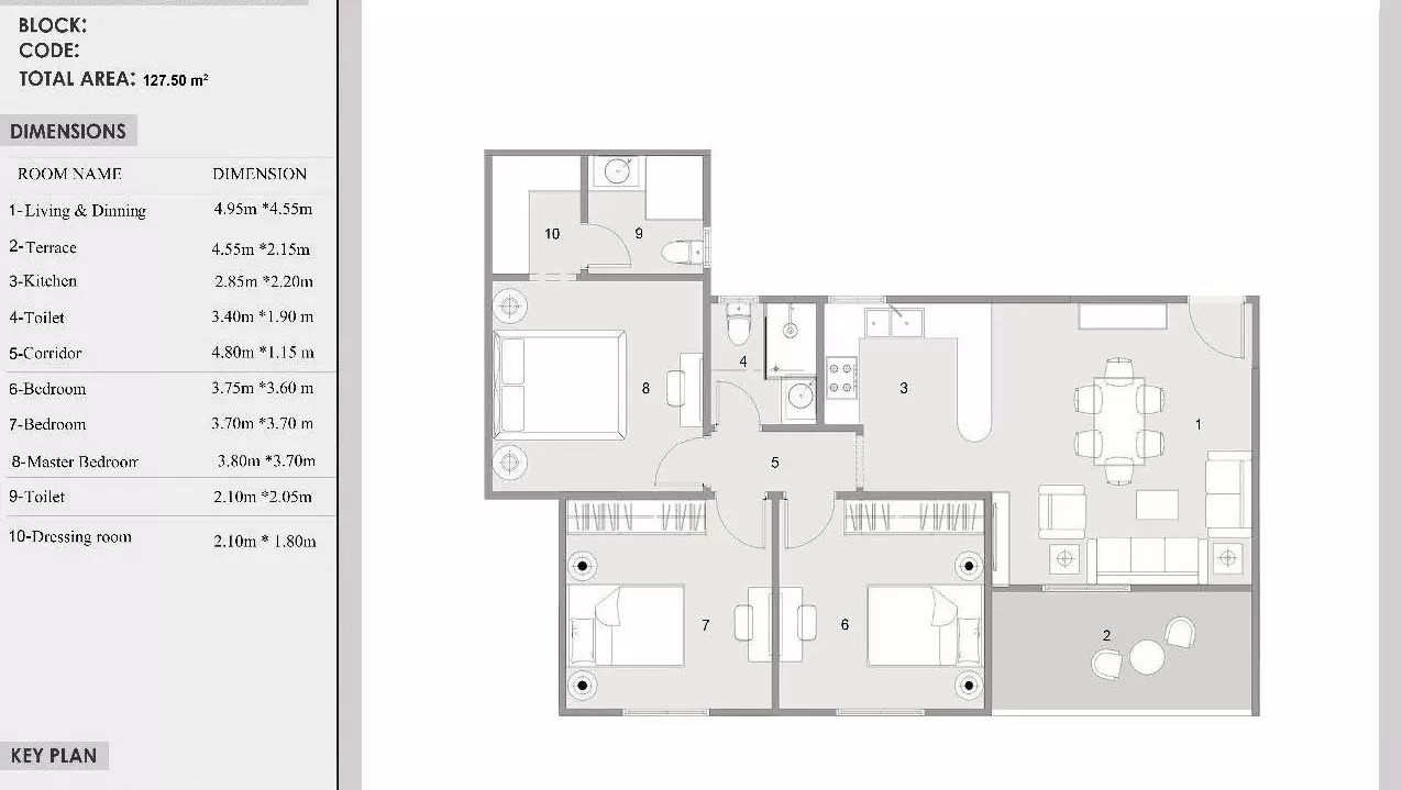
| Type A | 112 |
| نوع التخطيط | المساحة (sqm) | عدد الحمامات | مخطط طابق |
|---|---|---|---|
| Type A | 130 | ||
| Type B | 132 | ||
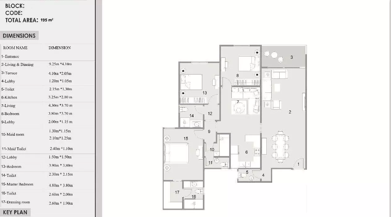
| Type G | 195 | ||
| Type C | 145 | ||
| Type E | 155 | ||
| Type A | 128 | ||
| Type D | 150 | ||
| Type F | 180 |
| نوع التخطيط | المساحة (sqm) | عدد الحمامات | مخطط طابق |
|---|---|---|---|
| Type B | 221 | ||
| Type E | 233 | ||
| Type F | 233 | ||
| Type D | 230 | ||
| Type A | 221 | ||
| Type E | 230 | ||
| Type A | 200 | ||
| Type C | 200 | ||
| Type C | 225 | ||
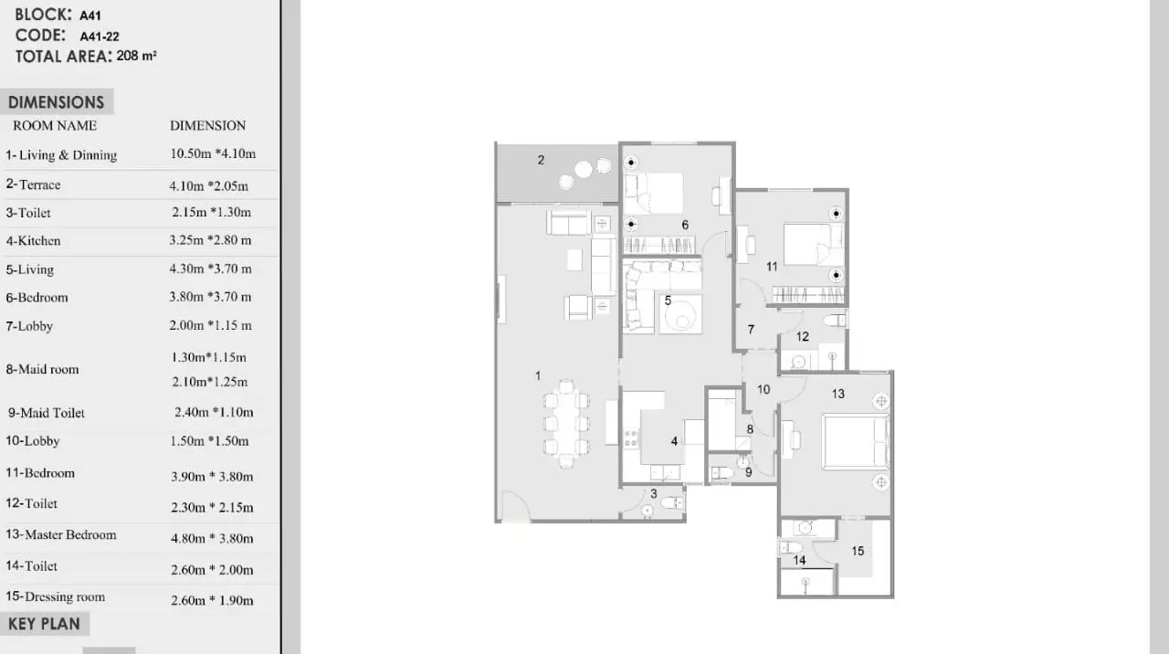
| Type B | 208 | ||
| Type D | 225 |
دوبلكس
| نوع التخطيط | المساحة (sqm) | عدد الحمامات | مخطط طابق |
|---|---|---|---|
| Type A | 269 |
| نوع التخطيط | المساحة (sqm) | عدد الحمامات | مخطط طابق |
|---|---|---|---|
| Type A | 341 |