![بلوم فيلدز صورة لمشروع بلوم فيلدز من تطوير Tatweer Misr في القاهرة,مدينة المستقبل,كمبوندات مدينة المستقبل,بلوم فيلدز - [1]](https://new-projects-media.propertyfinder.com/project/09405d00-0ca9-4653-b546-cb682bb4a5e2/gallery/image/UVqSNCL3ZrBnMgsYlVHDWmnMb0hvwyib58fjHN5ftpY=/medium.webp)

من: ٦٫٤ مليون جنيه
القاهرة,مدينة المستقبل,كمبوندات مدينة المستقبل,بلوم فيلدز
السعر عند الإطلاق ٣٫٦ مليون جنيه*
*الأسعار و الوحدات متوفرة وشروط الشراء قد تتغير بشكل متكرر. تواصل مع مندوب لمعرفة الوحدات متوفرة و الأسعار الحالية
ديسمبر ٢٠٢٩
شقة, دوبلكس
التملك الحر
15%
مُقدم
عند إطلاق المبيعات
10%
مُقدم
عند إطلاق المبيعات
إعلان المشروع
بدأ البناء
تاريخ التسليم المتوقع
كمبوند هوب في نيو كايرو:
1. الموقع الجغرافي للمشروع
كمبوند هوب يتميز بموقعه الاستراتيجي في قلب منطقة نيو كايرو، وهو يقع بالقرب من العديد من المعالم المهمة في القاهرة الجديدة. يبعد المشروع حوالي 20 دقيقة فقط عن الطريق الدائري، مما يسهل الوصول إلى مناطق حيوية مثل مدينة نصر ووسط البلد. كما يمكن الوصول إلى الجامعة الأمريكية في القاهرة خلال 10 دقائق فقط.
2. خدمات الكمبوند
يتمتع كمبوند هوب بمجموعة من الخدمات المتكاملة التي تلبي احتياجات سكانه. يضم المشروع مناطق مخصصة للتنزه، وصالات رياضية، وحمامات سباحة، بالإضافة إلى وجود مناطق تجارية تضم محلات تجارية ومقاهي. كما يتوفر أيضا خدمات الأمن على مدار الساعة والأنظمة الذكية للمراقبة، مما يوفر بيئة آمنة وراحة للسكان.
3. مساحة المشروع
تم تخصيص مساحة كبيرة للمشروع ، مما يمنح الكمبوند شعوراً بالاتساع وراحة البال. هذه المساحة تتيح توفير مساحات خضراء وحدائق واسعة، مما يعزز من جمالية المنطقة وجودتها.
4. التصميم المعماري
تتميز التصاميم المعمارية في كمبوند هوب بالأناقة والحداثة، حيث تم دمج العناصر المعمارية العصرية مع الطابع التقليدي لتوفير بيئة مريحة وجذابة للسكان. كما أن التصميم يراعي التفاصيل الصغيرة لخلق تناغم بين الوحدات السكنية والمساحات الخضراء.
5. البيئة الطبيعية والحدائق
الكمبوند يولي أهمية كبيرة للبيئة الطبيعية، حيث تضم المساحات الخضراء العديد من الحدائق والمسطحات المائية. يوفر هذا الجانب بيئة هادئة ومريحة بعيدة عن صخب المدينة، مما يساعد على الاسترخاء والتمتع بالطبيعة.
6. الطرق والمواصلات
تعتبر الطرق داخل كمبوند هوب واسعة ومرتبة، مما يضمن حركة مرورية سلسة. كما يوفر المشروع شبكة مواصلات عامة مميزة للوصول إلى مختلف مناطق القاهرة الجديدة، مما يسهل التنقل ويقلل من وقت السفر.
7. الأمن والسلامة
يوفر الكمبوند أعلى مستويات الأمان باستخدام أنظمة مراقبة متطورة وحراسة على مدار الساعة. كما تتم مراقبة المداخل والمخارج بشكل دقيق لضمان سلامة السكان والزوار.
![صورة لمشروع هوب من تطوير Alashraaf Development في القاهرة,مدينة القاهرة الجديدة,التجمع الخامس,هوب - [1] صورة لمشروع هوب من تطوير Alashraaf Development في القاهرة,مدينة القاهرة الجديدة,التجمع الخامس,هوب - [1]](https://new-projects-media.propertyfinder.com/project/a3bb8fd7-009b-4f29-af57-f07f52d12c1f/master_plan/image/KzOrz6j4YOkuw8UWP1XwuQ8fnmjSGbitNX1p0WZeNF4=/original.webp)
هوب من تطوير شركة الأشراف للتطوير العقاري هو مشروع سكني حديث كجزء من المخطط الرئيسي الأكبر لمدينة القاهرة الجديدة، التجمع الخامس، ويقع في المخطط الرئيسي المرموق للمشروع الأكبر. يمتد المخطط الرئيسي لهوب على مساحة واسعة، ويضم وحدات سكنية مصممة بأناقة، وحدائق منسقة، ومساحات ترفيهية وتجارية مخططة بعناية. يتميز الموقع الاستراتيجي للمشروع بسهولة الوصول إلى الطرق الرئيسية والشوارع الحيوية والمعالم القريبة، ما يوفر الراحة للعائلات والمحترفين والمستثمرين. يجمع المشروع بين العمارة المعاصرة والممارسات المستدامة والمساحات الخضراء والمرافق الموجهة للمجتمع، ليقدم بيئة حضرية آمنة وحيوية تعزز الراحة والرفاهية والقيمة طويلة الأمد.
المزايا الرئيسية
:الموقع والمعالم القريبة
الطريق الدائري – 15 دقيقة
مدينة مدينتي – 10 دقائق
شارع النوخادي – دقائق قليلة
الجامعة الأمريكية بالقاهرة – دقائق قليلة
مدينة الشروق – 15 دقيقة
:المرافق و الخدمات
نظام أمان بالبصمة
فرق أمنية وكاميرات مراقبة
مطاعم ومقاهي
محلات تجارية
صيدلية تعمل 24/7
جراجات واسعة
حدائق منسقة
بحيرات ونوافير مياه
صالات رياضية حديثة
أماكن لعب للأطفال
مساحات للشواء والحفلات
نادي اجتماعي
فريق تنظيف وصيانة

شقة
| نوع التخطيط | المساحة (sqm) | عدد الحمامات | مخطط طابق |
|---|---|---|---|
| Type A | 83 | 2 | |
| Type B | 84 | 2 | |
| Type C | 85 | 2 | |
| Type D | 89 | 2 |
| نوع التخطيط | المساحة (sqm) | عدد الحمامات | مخطط طابق |
|---|---|---|---|
| Type D | 138 | 3 | |
| Type E | 139 | 3 | |
| Type C | 135 | 2 | |
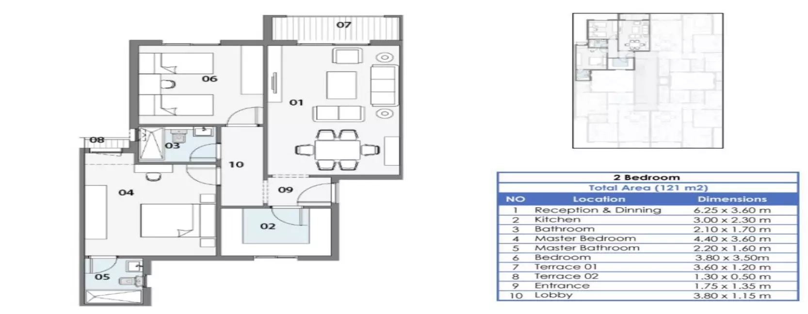
| Type F | 121 | 2 | |
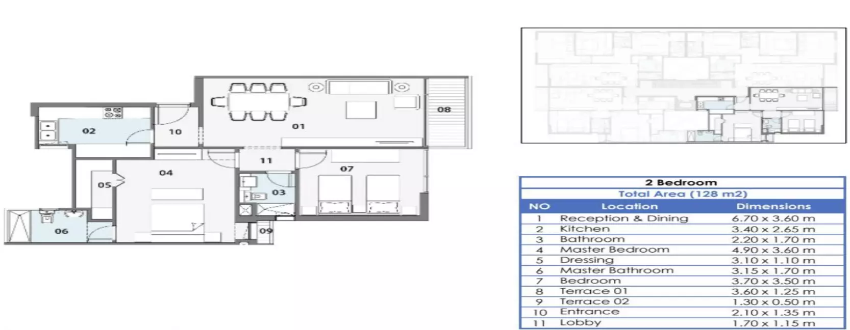
| Type G | 128 | 2 | |
| Type A | 114 | 2 | |
| Type B | 123 | 3 |
| نوع التخطيط | المساحة (sqm) | عدد الحمامات | مخطط طابق |
|---|---|---|---|
| Type C | 170 | 3 | |
| Type A | 148 | 3 | |
| Type B | 152 | 3 |
دوبلكس
| نوع التخطيط | المساحة (sqm) | عدد الحمامات | مخطط طابق |
|---|---|---|---|
| Type B | 270 | 4 | |
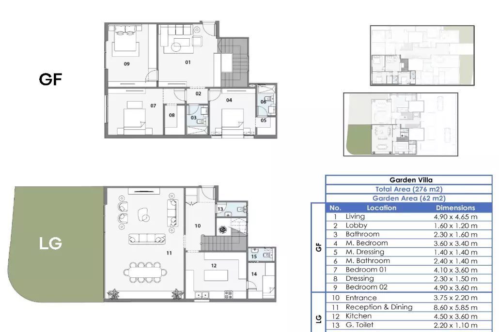
| Type C | 276 | 4 | |
| Type A | 244 | 4 |